适用范围
由于结构紧凑,机型小,可放置于车间内,因此可用于中频电源冷却,机械水套冷却等;单位空间内的换热面积较大因此更适用于温差较小的低温度(35-30℃)冷却项目,如水源热泵机组群的冷却。
运行原理
循环水系统分为:
内循环水系统:循环水经过热源换热升温进入热浸锌热交换器,通过热交换器管将热量送入外界,冷却后的循环水由系统循环水泵送往热源
外循环水系统: 喷淋水由散水水泵从下部水槽送至上部布水管道,水喷出后和热交换器管接触,部分水蒸发后带出热量。冷却后的喷淋水落入下部水槽再次循环。
内循环水通过热交换器管进行换热,避免了被外循环水和空气直接接触而导致水质污染。
特点 :
换热效率高
高效的换热器采用独特的换热设计,空气与水在盘管内外侧逆流换热使换热效率达到最佳。工业用冷却塔中,整个换热器采用脱磷紫铜管,铜的导热系数较高,且壁面光滑,不易结垢。铜材质的换热器可为机组提供防腐和保证管内工艺水质洁净。在设备出厂前,每根管子经过三次2.5MPa 严格的气压测试。
可靠的驱动系统
采用全封闭电动机,具有一定的超负荷运转能力,且使用寿命长。
机翼型宽叶片的铝合金通风机,使机组运行噪音低,耗功小,效率高。
重载型通风机轴承,其L10使用寿命为75,000小时。
按照电机铭牌功率负荷的150%设计的高强度皮带,使设备运行更可靠。
内部采用耐腐蚀的铝制风叶和电机皮带轮。
高效的进风窗
采取三通道独特设计的进风窗可以有效地减少大气中的尘埃会进入水盘中,同时也减少水槽中积灰、沉淀,细菌和藻类的滋生。
维护简便
集水盘是倾斜式设计,便于清洗,并可将脏物轻易从水盘内排出。
机组四面的进风窗全部为可拆卸设计,方便维护人员进入水盘内进行水盘清洗和水盘内部的检查与维护。
机组箱体段配有滑动式检修门,维护人员进入检修门后可对机组的驱动部件进行检查和维修,且外伸的油管方便轴承的润滑。
机组配备电机吊架,维修平台和扶梯,方便检修人员的现场维修操作。
占地面积小
与其它厂家的冷却塔相比,BMP冷却塔的占地面积较小,节约占地空间。
客户可选部件
水盘电加热器组件
冷却塔如果暴露在低于结冰温度的环境中,需要采用相应的保护措施,以防止设备在停运时水盘中的水结冰。选配在工厂内预装的水盘电加热器可使水盘中的水温始终保持在不低于4摄氏度的状态,这是一种提供这项保护措施的简单而廉价的解决方案。电加热器组件包括
电加热器,温度继电器和一低水位切断开关。标准的电加热器是基于环境温度在零下18摄氏度时设计的。
双速电动机
双速电动机能够提供更加精确的容量控制。当负荷减少或当地的湿球温度发生变化时,通风机无需满负荷运行,这种情况可通过双速电动机来实现,达到节能的作用。此外,风机在低速运行时还可大大降低机组的噪音。
变频电动机
变频电动机适用于冷凝器进行变频驱动从而达到容量控制的场合。变频电动机可实现能量无极调节。
电子水位控制器
冷却塔可配备电子水位控制器来替代标准的机械式浮球补水装置。其特点是控制水位更精确而无需现场调节。
维护操作平台
冷却塔可配备操作平台以便维护人员能在安全的环境下对驱动部件进行维护。该操作平台配有一直梯,且现场安装方便。安装位置一般在机组箱体段检修门侧。
电动机吊架
镀锌钢材质的电动机吊架结构结实。利用该辅件可以轻松地更换电动机。维护人员只需用一个手扳葫芦即可将电动机放到地面。
水盘消音器
水盘消音器安装在机组水盘中。该装置可大大减少水盘内落水的噪音。
不锈钢水盘
BMP水盘可由不锈钢材料制成。相对其他结构材料,不锈钢具有更高的耐腐蚀性。
振动切断开关
冷却塔可配备机械式和电子式的振动跳脱开关,以便有效地纺织设备由于机械驱动系统的振动过大而出现的故障。
设备图纸
型号:单模块—双风机(2面进风)


型号:单模块(4面进风)

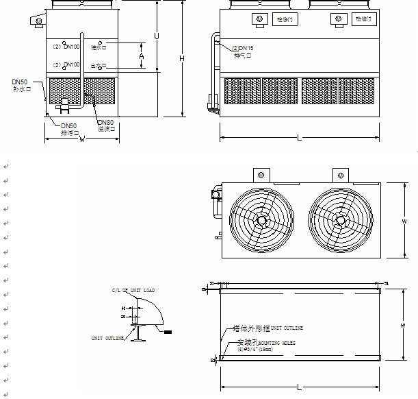
型号: 单模块—双风机(4面进风)

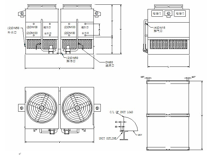
型号:双模块—(4面进风)


型号: 多模块—(4面进风)

型号:双模块—(4面进风)


型号: 多模块—(4面进风)
