
EDL-HH 混流闭式冷却塔
适用范围:
填料与盘管分开,更适合于冷却温度较高(如70℃~80℃左右)或冷却温差较大(60—35℃)的项目。冷幅也可以较小,但能耗相对较高。
工作原理:
上部为换热器,下部是横流填料,有两个进风口,分别进风。淋水先经过换热器,再经过填料,并通过淋水泵在塔内循环。空气从下部的进风格栅进入,向上掠过盘管外表面,形成逆流。对填料,淋水从上到下,空气从左到右,是典型的横流。

特点:
换热性能好
从塔的上部和下部进风,分别流过管束和填料,可产生较大的空气流通面积, 流动阻力小,换热性能好。
防止结垢
空气和喷淋水以平行和向下的路径流过盘管表面,水不会由于空气流动的影响出现在管底侧分离的现象,从而消除水垢形成的干点。盘管主要依靠显热热传导的方式,比起其它主要依靠潜热传导(蒸发热传导)的方式,结构可能性更低。
维护方便
塔内空间大,为设备的例行检修提供变革性的便利,可通过检修门进入塔内维护。在设备全面运行的状态下,对平行流动的空气和水的状态进行检查。
安装费用低
采用模块化设计,减少了安装时间,设备重量较轻,简化了吊装时间,并降低了支撑钢结构方面的成本,较少的盘管接头,降低了配管成本。
弹性的应用
尺寸紧凑,低噪音,便于场地安置。
3.可选项
可选制造材质
所有的钢板和结构件,包括结构框架,百叶支承,下部水槽,风机平台和机械设备支承的制造材料均可选用304型不锈钢,在双侧进风塔的外壳板材均采用不腐蚀的玻璃钢。专为暴露在腐蚀性极强的环境下或是为了要求较长的使用寿命所设计。


加热器
在寒冷地区的冬季使用冷却塔的场合,循环水、散布水易冻结,因而引起配管、塔内部件的破裂。为了防止这一类事故的发生,我们推荐使用防冻部件,如电加热器,如需其它防冻方式可与公司联系。


正向闭合风门(PCD)护罩
在要求增强热量损失防护性能时,可以采用安装正向闭合风门及风门驱动器的盘管空气入口护罩。
电子水位控制套件
在要求更为精确或更为耐久的水位控制时,可采用它替代补水阀。包括安装在水盘内的感应式水位控制装置和 冷却塔补水连接管道上慢闭式电磁阀。
延伸润滑油管
润滑油管的端部为标准的润滑脂接头,可用于驱动轴承的润滑,润滑脂接头位于室内靠近检修门处。
水槽清扫配管
用于除去冷却塔冷水盘中可能沉积下来的碎屑,安装在冷水盘内,可以旁通连接于砂滤设备。
细菌、粘液和藻类控制装置
通过向循环水中自动喷洒精确剂量和极低浓度的天然碘来控制细菌、粘液和藻类生长。
耐高温散热片
在进入冷却塔的流体温度较高时,可考虑选用,具体要求可与我公司联系。
独立式风机系统
为多风机型号的冷却塔提供专用的电机和驱动装置,可实现每台风机单独运行。
震动跳脱开关
可配备机械式或电子震动的跳脱开关,以便有效防止设备由于驱动系统震动过大而出现故障。
外部检修设施
从设备底部至风机安装层配备铝制爬梯,还可配有爬梯的风机安装延伸平台、检修门平台和外部电机平台,以便于进入设备进行检查。
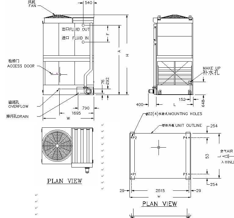
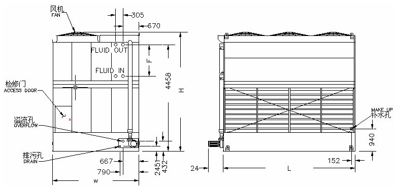
设备外形图与基础图
型号:EDL-HH-27~47TR

型号:EDL-HH-58~149TR

型号:EDL-HH-311~355TR


